Villa in campagna a Ripa Teatina
- €380.000
Panoramica
- Casa Singola
- 3
- 2
- 154
- 2024
Descrizione
Incantevole villa interamente ristrutturata in posizione strategica tra le colline teatine a soli 10 minuti dalla costa adriatica e a 40 da passo Lanciano.
L’ abitazione è interamente ricostruita in classe A+++, con alto livello qualitativo nei materiali utilizzati e finiture sapientemente scelte per creare un armonioso collegamento tra passato e presente.
Articolata su due livelli così composti:
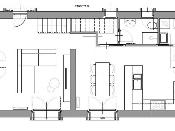
piano terra con ampio e accogliente soggiorno, una grande cucina, un bagno e lavanderia. Tutti gli spazi hanno affaccio all’esterno a cui si può accedere direttamente sia dal soggiorno che dalla cucina;
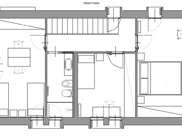
al piano primo, cui si accede tramite scala interna, c’è la zona notte con tre camere da letto ed un ampio bagno. Tutti gli infissi hanno persiane alla francese.
La proprietà è completata da un’ area verde di circa 350 mq. che circonda la casa e da una comoda dependance di circa 15 mq utilizzabile come rimessa attrezzi giardino o altro.
Disponibili a confine altri lotti di terreno. La costruzione è attualmente in fase di conclusione dei lavori.
Dettagli
Updated on Settembre 9, 2025 at 1:44 pm-
ID Immobile AI-19
-
Prezzo €380.000
-
Dimensione dell'immobile 154
-
Mq. Terreno 350
-
Stanze da Letto 3
-
Bagni 2
-
Anno di Costruzione 2024
-
Tipologia Immobile Casa Singola
-
Status Immobile Vendita
Indirizzo
Apri su Google Maps-
Indirizzo: via Santo Stefano
-
Città: Ripa Teatina
-
Provincia: Chieti
-
CAP: 66010
-
Area: zona Collinare
-
Nazione: Italia
Caratteristiche
Classe Energetica
-
Classe Energetica: A+
- | Classe Energetica A+A+
- A
- B
- C
- D
- E
- F
- G
- H
- IN CORSO
Informazioni di Contatto
Visualizza AnnunciAnnunci Simili
Casa allo stato grezzo a Miglianico
- €270.000



















